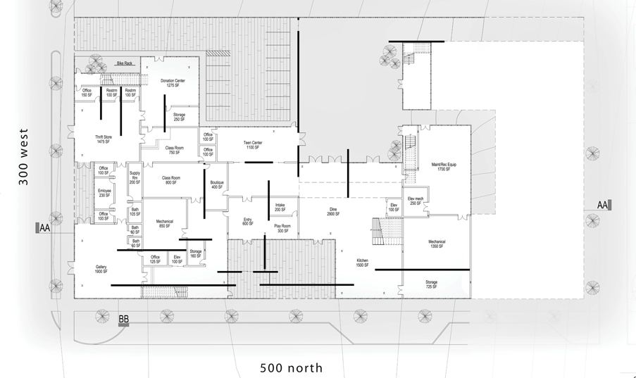
• As domestic abuse continues to rise, broken families need a place to rebuild. Many of these victims need to make drastic changes to recover. That recovery process starts within minutes of being inside the building. The design focuses on the healing opportunities and enriching experiences needed to instill hope in the victim. The circulation space through the building alludes to the journey one needs to take to recover. The program was organized along this pathway, which then derived the form of the building. The building’s function and form tell the story of the afflicted families’ past, present, and their hope for the future.

Domestic Shelter

Program ::

Housing Victimized Women and Children

Date ::

2011

Location ::

Salt Lake City

Status ::

Idea