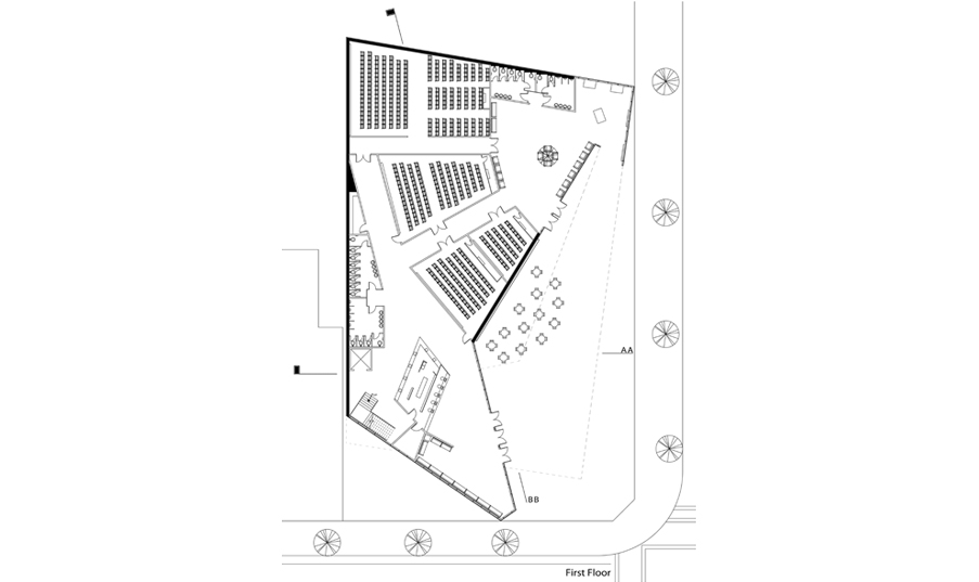
• Dogme 95 films follow strict guidelines in order to find the purity of film. One of the ten rules is that the camera has to be hand held at all times. The film is always in perspective with the human eye level. I wanted to capture that idea of perspective and control through a diagram with images from a Dogme 95 film. It was then translated from a 2D collage into a 3D object that has two vanishing points and planes traveling to the points. The parti diagram broke down the 3D object to its simplest form by having one vanishing point. This was the basis for the Film Center. The building’s design is centered on changing and controlling human perspectives, allowing for unique experiences, similar to how a film changes and controls our perspectives.

Film Center

Program ::

Independent Film Theater

Date ::

2010

Location ::

Salt Lake City

Status ::

Idea