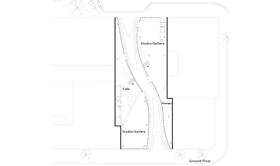
• A proposal for a School of Architecture in the heart of downtown would open many opportunities for students to interact in both a professional and academic setting. The site is between two historic buildings and is the threshold between a rail stop and large office buildings. The concept is to create a connection between the architecture students and the working professionals surrounding them by creating an alley through the middle of the building. This idea shaped the building and its indoor/outdoor functions and form. The studios, galleries, and a cafe on the ground floor open many opportunities for the public to better understand the creative process behind architecture.

Satellite School

Program ::

Satellite School of Architecture

Date ::

2011

Location ::

Salt Lake City

Status ::

Idea